Skip to content
Noyil
Architecture, Gaming, Film
menu
Primary Menu
Portfolio
Featured
Contact
Menu
Search for:
Press Enter / Return to begin your search.
close search form
open search form
scroll to discover more
back to top
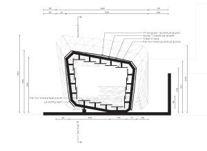
Micro Cinema Section B
November 21, 2018
November 21, 2018
Post navigation
Micro Cinema Section B
Leave a comment
Cancel reply
Δ
Comment
Noyil
Sign up
Log in
Copy shortlink
Report this content
Manage subscriptions