Year: 2015
Made with: Sketchup, Illustrator, Laser Cutting Machine
Second year housing studio project.
Instructors: Arch. Yoram Shilo, Arch. Haim Izraeli
A biomimicry-oriented housing studio.
I studied the difference between physical hunger and mental hunger and found out hunger feeling is simply controlled by two hormones: Leptin and Ghrelin. The first can be mostly associated with physical and chemical needs, while the second handles your appetite as it sends signals to the brain at an habitual schedule.
This concept of double intake regulation that affects the amount of space filled in your stomach, using one real factor and one reinterpreted mental factor, can be casted on architectural space:
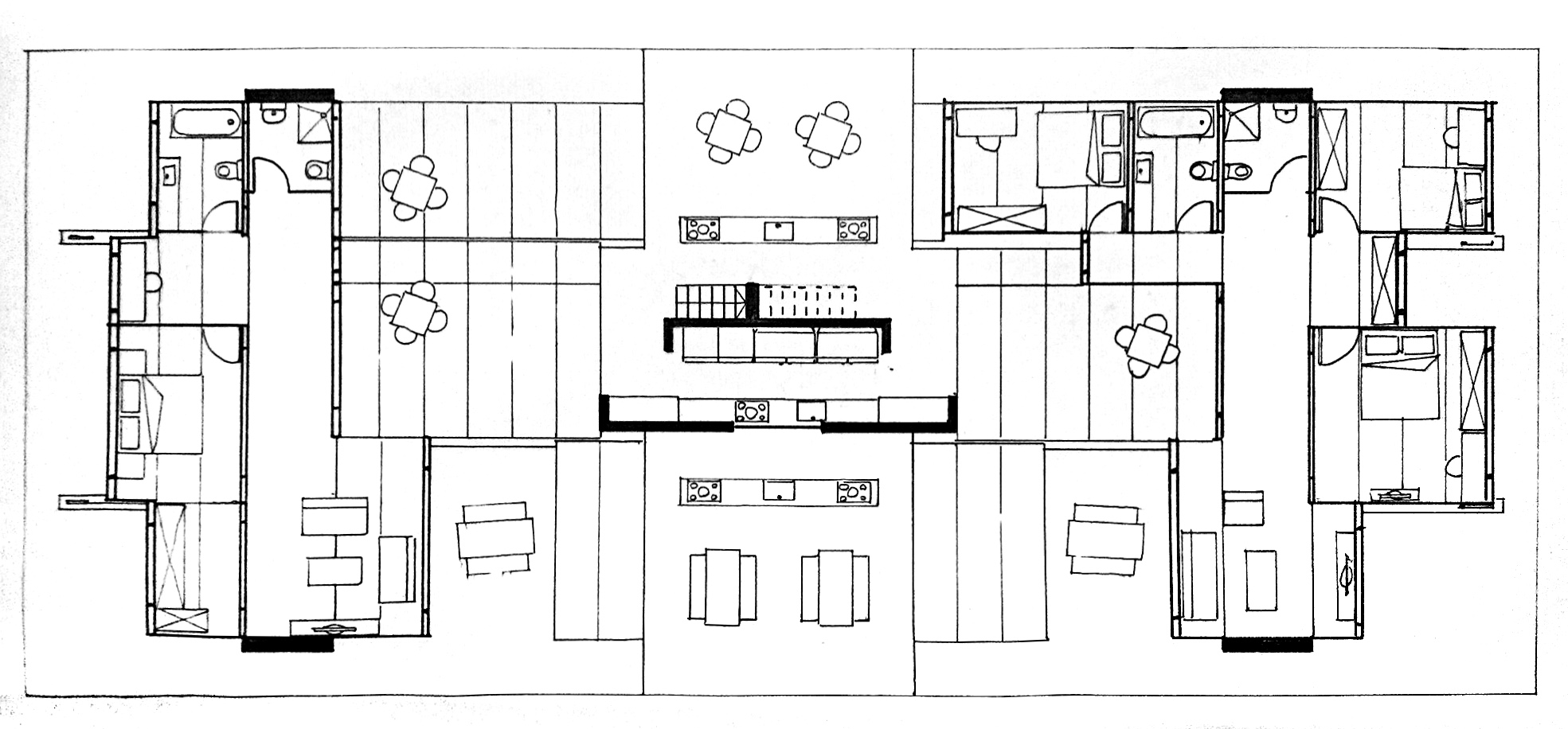
To determine the area of the apartment we look for, we construct an equation that contain both empirical calculations, derived from available resources, program needs and furniture dimensions, and emotional decisions, derived from desires and current state-of-mind.
Real-estate companies and the authorities use the same empirical calculations, but their emotional ones are based on assumptions that often do not comply with their customers.

This situation creates a gap between available apartments and wanted apartments. As long as we use vague social assumptions in our work, we’ll keep designing buildings that people not necessarily want, with apartments that only serve captive customers, which in time use illegal additions to comply with their wills.

Just as commercial spaces allow their owners to flexibly change programs with open floor plans, I created a small apartment building that allow apartment owners to add and reduce area to their estate with relatively few expenses and hassle.













